Кошик
В кошику немає товарів :(
Це ніколи не пізно виправити :)

Кутові крани призначені для підключення до холодної та гарячої водопровідної мережі, за допомогою гнучких з’єднувачів з накидною гайкою, санітарних приладів:
Кран дозволяє перекривати подачу води до джерела споживання води. Використання вентиля дозволяє відрегулювати витрати через споживач води, що підключається таким чином, щоб його робота не впливала на нормальне функціонування інших сантехприладів квартири.

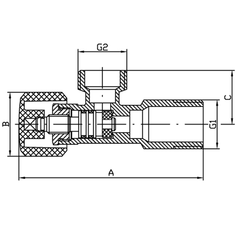
| Розміри, G1 × G2 | 1/2” × 3/8” | 1/2” × 1/2” | 1/2” × 3/4” |
| A × B × C, мм | 79,5 × 27 × 22 | 79,5 × 27 × 22,5 | 79,5 × 27 ×24,5 |
| Наявність накидної гайки | Так | Ні | |
| Клас герметичності затвора | «А» | ||
| Робочий тиск (PN), бар | до 12 | ||
| Умовна пропускна здатність, м3/ч | 1,3 | ||
| Витрата води при мінімальному робочому тиску (0,5 бар), л/с | Не менше 0,2 | ||
| Витрата води при тиску 3 бари, л/с | Не менше 0,5 | ||
| Температура робочого середовища, ℃ | 0 ÷ +80 | ||
| Акустична група | III | ||
| Матеріал корпусу | Латунь CW617N хромована | ||
Немає відгуків про цей товар.